返回千亿(中国) > 光达千亿(中国) > 行业新闻

使用载冷剂的冷库能耗大吗?

2020-10-21

载冷剂冷库采用间接制冷技术

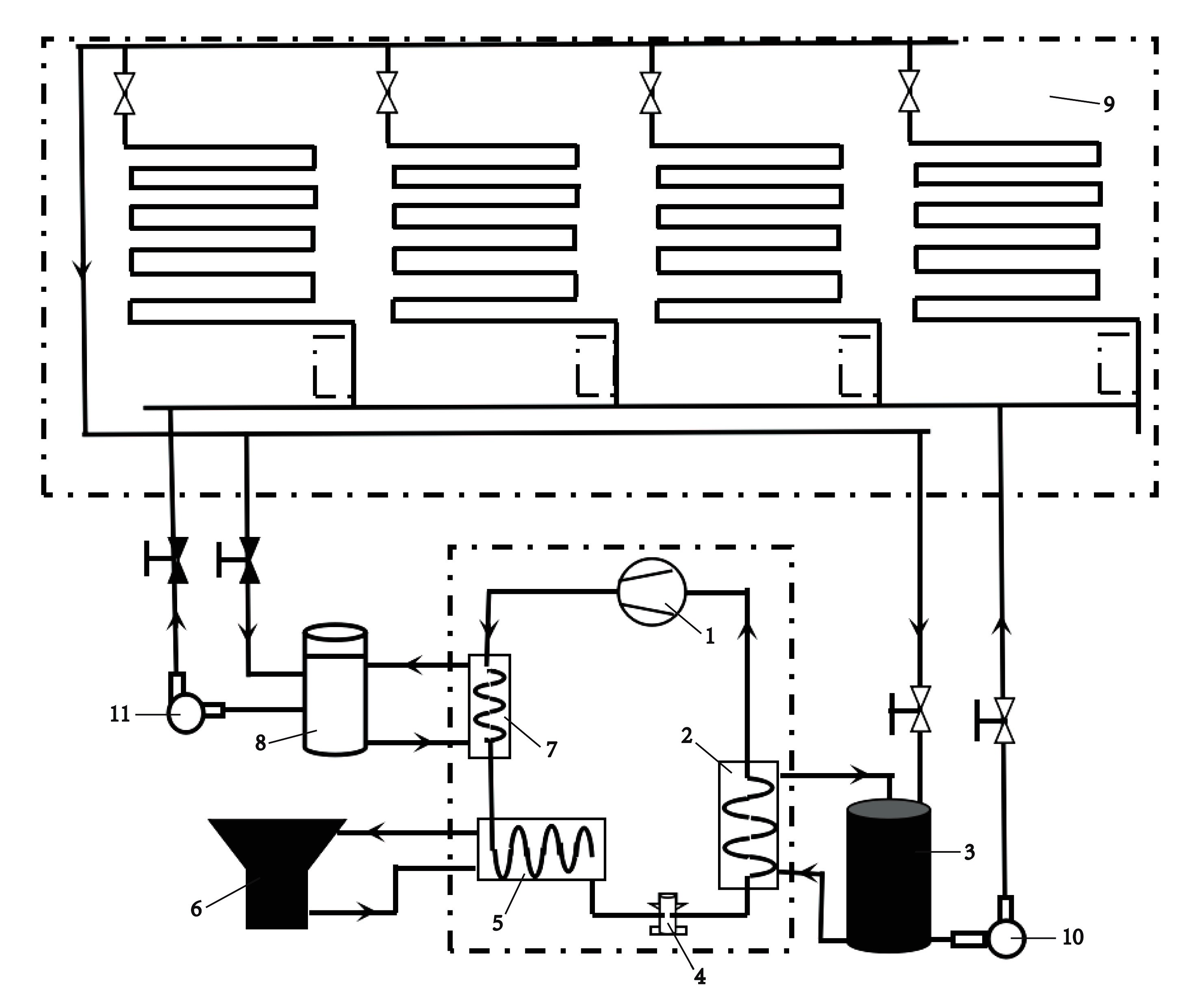
  二次制冷技术,也就间接制冷技术,在制冷系统管路增加二次冷却液储液罐,使制冷剂可以在一个局部小的范围内,将冷量传递给载冷剂,然后再通过泵在常压下将载冷剂的冷量传递给冷库实现制冷。本系统设有载冷剂储罐与蒸发器连接,蒸发器吸收储罐中载冷剂的热量,将载冷剂降温,载冷剂储罐与冷却泵连接,冷却泵将载冷剂运输到冷库间释放冷量,以达到制冷的目的;同时该系统在压缩机后设有热交换器及除霜液储罐,压缩机放出的热量进行热交换后储存在除霜液储罐中,当冷库间进行除霜时,将除霜液通过泵输送到冷库间进行热除霜;该系统中载冷剂与除霜液均为冰河冷媒专利产品,该系统解决了传统直接制冷系统存在的安全性问题,暖液除霜系统利用压缩机余热除霜,达到节能的目的。

载冷剂的冷库能耗

  本系统的优点是设有载冷剂储罐,其容量为载冷剂循环量的一倍以上,需要冷量时,载冷剂在冷库间及操作间常压循环,解决了传统氨冷库的安全性问题,也方便以后进行管路维修,同时当夜间电费低时,可以将制冷机满负荷运行,冷量储存在载冷剂中,白天用电量大时,可以关闭制冷机组,让储存的冷量进行循环,实现了电力的移峰填谷。

  此优化方案中所用载冷剂为冰河冷媒科技(朝阳)有限公司专利产品冰河冷媒,其特点是用量省、载冷能力强、防锈性能突出、无毒、无闪点解决了传统载冷剂存在的问题,使设备使用寿命至15年以上。

  很多伙伴对载冷剂能耗感兴趣,二次换热势必有能耗,但我们可以通过增加换热面积、选用专业的载冷剂等减小能量损失接近氨直冷能效。

优化的间接制冷系统的特点

  与直冷系统相比,间接制冷系统的优势特点如下:

  (1)系统简单

  采用间接冷却制冷系统,减小了制冷系统的体积,可使制冷剂的充注量减少;通过冰河冷媒载冷剂进行间接制冷,其管道为普通的水路系统,制冷管路安装简单、方便快捷,管道承压小,管材要求小且不易发生泄漏。

  (2)安全性高

  采用氟利昂制冷剂,不存在防爆问题;管道采用普通的水路,不易发生泄漏;采用载冷剂可使制冷系统集中,制冷剂不直接入库,一方面库内冷冻冷藏的食品不会受到污染,另一方面,与冷库的工作人员密集的工作地点分开,提高了人身安全性;即使发生泄漏,代价也低得多。

  (3)环境友好

  间接冷却系统中制冷剂系统集中在较小的地方,制冷剂的充注量减少,减少了HCFCs类和HFCs类制冷剂的使用,降低了对臭氧层的破坏性和温室效应。

  (4)温度控制精度高

  载冷剂的热容量大,库温易于保持稳定。间接冷却制冷系统因为温差远小于氟利昂或氨制冷剂直接制冷产生的温差,不需要安装加湿装置就能满足长期的保鲜。这种较高的温度精度控制利于食品的保鲜,减少了食品的干耗,避免了不必要的损失,节省了费用。

  当压缩机停车后,受温控的变频载冷剂泵继续低流量运转,可维持冷库较长时间的温度要求。由于载冷剂温度的回升呈缓升曲线,期间直冷可能量调节至低负荷补冷。

  (5)运行状态好

  压缩机不需要频繁地启动,设备的使用期限延长。故障率低、维修费用低、系统稳定可靠、寿命长。相比于直接冷却系统,其回油特性更佳。

  (6)运行费用低

  运行费用包括制冷费用、频繁启动费用和除霜费用三个方面。直接冷却系统蒸发温度相对较高,制冷电费低,但由于其频繁启动且需要进行除霜,故其产品干耗量大,频繁启动电费高,除霜费用高,综合运行费用高。间接制冷系统蒸发温度相对较低,热量损失大,制冷电费较高,但其不需要频繁启动,且其除霜的量和次数较小,产品干耗量小,甚至不消耗除霜电能,故其综合运行费用低。另外间接制冷系统可灵活利用峰平谷电价移峰填谷降低运行成本。

  间接冷却制冷系统载冷剂的选择非常重要,会影响系统安全性与综合性能。专业载冷剂系统COP值优于乙二醇。一些非专业载冷剂对系统有腐蚀性,存在安全隐患。间接制冷系统载冷剂的选择非常重要。本文推荐使用专业载冷剂冰河冷媒。